The Solfern House I 250sqm

Custom-design

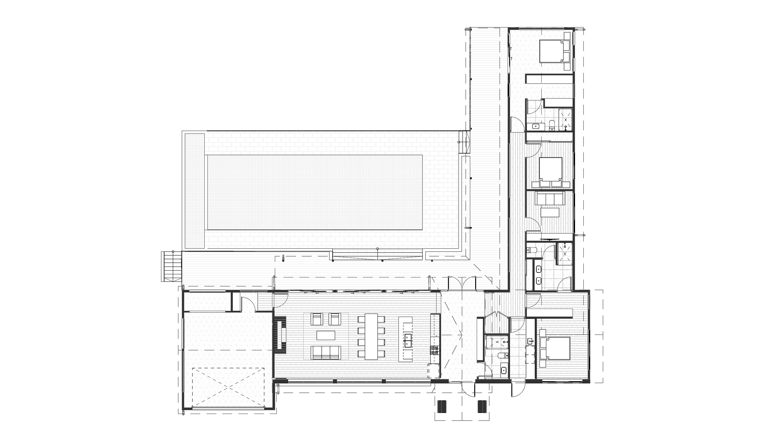
"Solfern House Solfern House is a custom-designed residence that celebrates light, landscape, and family living.

Framed by lush tropical planting and anchored by natural stone elements, the home is conceived as a series of pavilion-like forms connected through generous glazing and seamless indoor–outdoor flow. Soft daylight filters deep into the interiors, creating warm, calm spaces that feel both open and intimate.

The architecture responds to the Queensland lifestyle — wide eaves, natural ventilation, and a strong relationship with the garden. Every space is oriented to capture greenery, light, and connection, making the landscape an integral part of daily living.

  • Total Floor Area: 200sqm (Internal) + 50sqm double garage + swimming pool & outdoor bbq place.

  • Configuration: 3 Bedroom / 2 Bathroom / Open-plan Living & Kitchen

  • Approval Ready: DA & BA streamlined

  • Sustainability: Passive solar orientation and natural cross-ventilation come standard.

Next
Next

Smith House | Alterations & Additions